top of page
Create Your First Project
Start adding your projects to your portfolio. Click on "Manage Projects" to get started
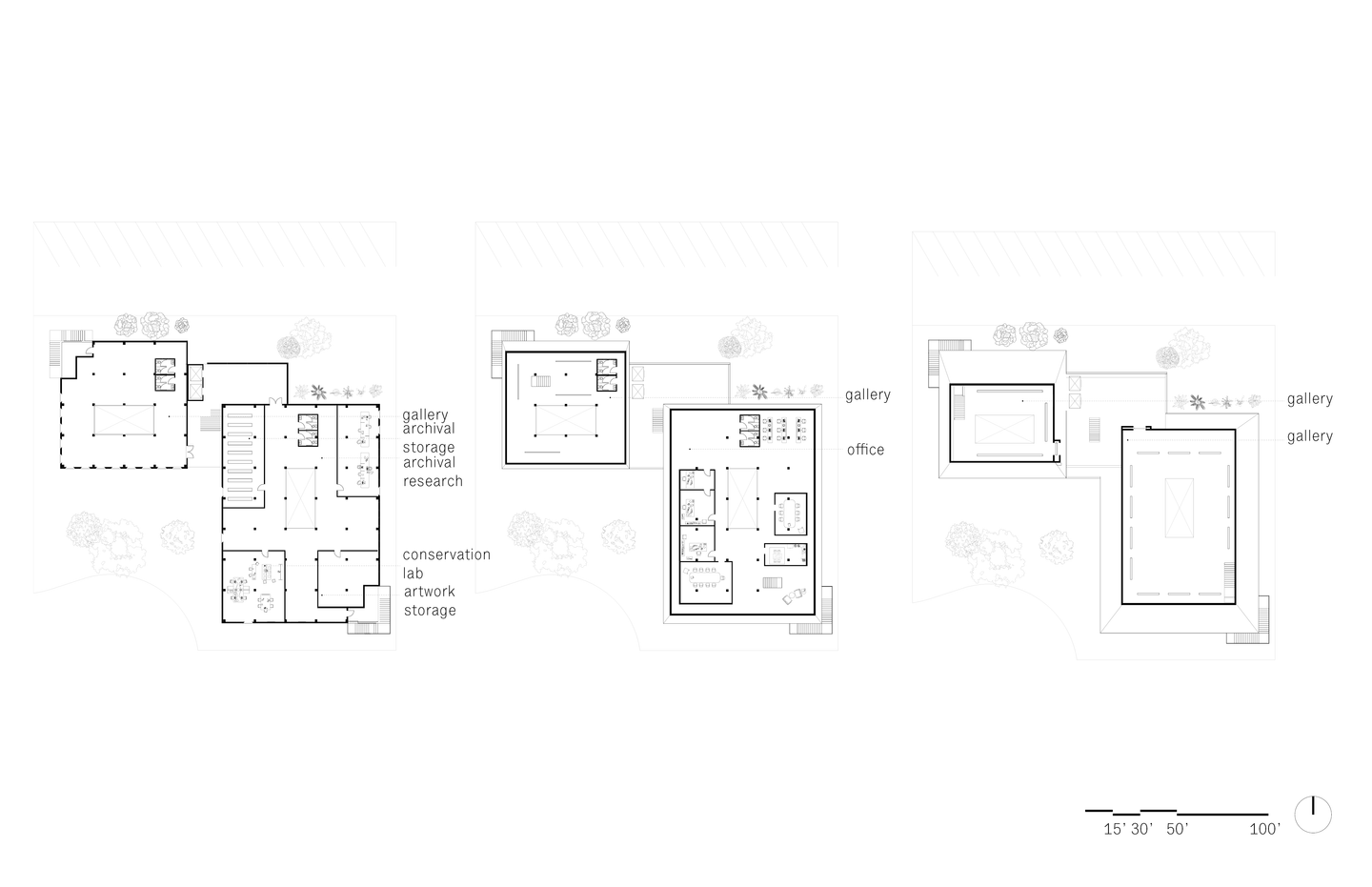
Corita Kent Arts Center
Project type
Architecture
Date
May 2025
Location
Los Angeles, CA
The Corita Kent Arts Center project was a comprehensive exercise. We learned about structure, egress, and access, among other things, and the studio assignment was to create an arts center that serves the community with community art studios, multi use spaces, etc. This design seeks to create abundant natural light, a natural circulation path between the perimeter and the central core, and capture some of the playful nature of Corita Kent’s art.
bottom of page





















